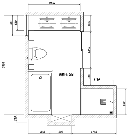
最近沉迷于家居装修、收纳的陈太对家中卫生间的改造有了不一样的思考,日常使用频率很高,却总是被忽视的空间,反而却是生活中不可缺失的一部分。因此,陈太太和陈先生按捺不住拾掇的心,决定重新改造卫生间。 家庭成员:陈生、陈太一家五口 面积:约9㎡ 风格:现代简约 陈先生、陈太太七年爱情长跑,最终收获“爱情与面包”,夫妇两人职业皆为律师,工作繁忙,家中小宝则由一起生活的父母帮忙照料。陈太陈生追求极简生活,改造空间需求希望卫生间简洁大方,舒适实用。 设计理念:五口之家,现代时尚简约风,整体空间以灰白色为主色调,雅黑点睛,简约时尚。打造一个高格调,干净整洁、实用的卫生间。 量身定制 科学布局 卫生间L形布局,高效划分为二分空间,即洗漱区+淋浴区,帮助实现干湿分离 浴室柜 洗漱区浴室柜造型简洁、大方的双台盆设计,让陈先生和陈太太在忙碌的晨间,同时进行洗漱,使用更快捷更高效;镜面柜,一镜两用,除了日常梳妆打扮,同时方便收纳陈太太护肤品以及洗漱用品,收起的瓶瓶罐罐,保持台面干净整洁。 如厕区 马桶两侧特别设计了立柜,方便储放纸巾,为空间增添一丝生气的绿植小盆栽,书籍,手机等。柜体线条流畅,简洁利落,非常符合陈太太和陈先生的气场。值得一提的是,设计师特别在浴缸与马桶之间,设计了半隔断,这样夫妻两人一人泡澡,一人使用马桶时,也可以避免一丝不自在,同时具备美化空间的作用。 淋浴区 在密闭狭窄的空间,容易有压迫感,陈先生希望可以给卫生间预留多一点空白空间。方正设计时尚简洁,给卫生间预留更多自由走动的空间。





陶瓷体/ABS盖板 智能马桶K03L
全铜主体59铜 花洒C019
非标定制-核价下单
非标定制-核价下单
非标定制-核价下单
版权所有 佛山市英鼎卫浴有限公司 公司地址:佛山市禅城区石湾镇街道塘头商贸城3号楼(2)成都市成华区富森美家居2区10幢4-5号
一线品牌卫浴加盟代理咨询电话:400-000-7128, 15908185706 备案号:粤ICP备17106723号-1 网站定制:三三诚宝 后台管理